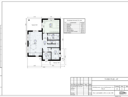
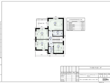
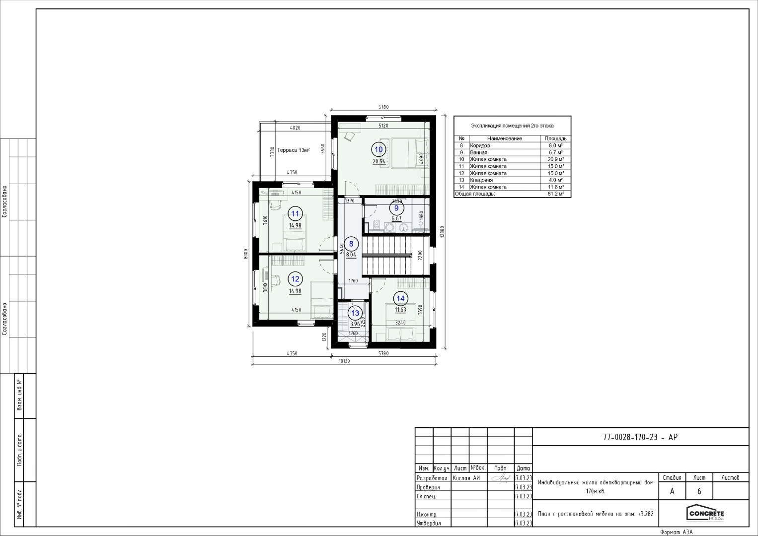
Проект дома с плоской крышей 170 кв.м.
Площадь
170.4 кв.м

жилая площадь
148.4 кв.м
Спален
5
Этажей
2
Высота потолка:
2.95 м
Цена от
0 $ кв.м.
Описание проекта
- Описание проекта
- Планировки
- Дополнительная информация
Описание для данного товара отсутствует.
В стоимость входит:
Фундамент:
- Буронабивные сваи сечением 300х300 и заглублением на 2 метра ( * тип фундамента и его стоимость может быть скорректирована после геологии)
- Песчаная подушка
- Разводка системы канализации под фундаментом
- Закладные гильзы водопровода и электричества под фундаментом
- Гидроизоляция обмазочный мастикой
- Утеплитель фундамента из XPS (100 мм)
- Арматура Аlll S500
- Контур заземление вокруг фундамента с вводом в дом
- Сертифицированный бетон (марка С8/10, С 16/20, С20/25, С25/30)
Стены:
- Высота от чистового пола 2,95м для скатных и плоских кровель
- Наружные трехслойные ЖБ панели толщиной 330мм
- Внутренние несущие стены (по необходимости) – однослойные ЖБ панели толщиной 200мм
- Внутренние не несущие стены – однослойные ЖБ панели толщиной 120мм
- Внутренние кабель каналы под электропроводку с установкой подрозетников
КРОВЛЯ
- Модульная металлочерепица AQUASYSTEM профиль Гётеборг РЕ 0,5
- Стропильная система заводского изготовления из сухого строганого пиломатериала по технологии “Mitek”
- Вата целлюлозная Грин Палп Стандарт плотностью 30-35 кг/м3 толщиной 300мм
- Гидроизоляционная пленка TOPDACH 135
- Пароизоляционная пленка Fakra TERMOFOL 90 AL
- Оцинкованный крепеж
- Односторонняя клейкая лета для пароизоляционных пленок
- Лента клейкая, двусторонняя для гидроизоляционных пленок
- Лента кровельная уплотнительная под контробрешетку TOPDACH Pur
- Снегозадержатель трубчатый
- Проходки на кровле: вытяжка котельной (125 мм), вытяжка кухни (125 мм), фановый стояк (110 мм)
КРОВЛЯ
- ЖБ пустотная плита перекрытия толщиной 220мм
- Пароизоляционная пленка
- Утеплитель пенопласт ППТ 20 толщиной 150мм
- Утеплитель разуклонка переменной толщины 100мм и более
- Противопожарная отсечка из жесткой минеральной ватой толщиной 30мм средней плотности не менее 190 кг/м3
- Материал рулонный гидроизоляционный на битумно-полимерном вяжущем Элакром Г-ПХ-БЭ ПП/ПП-4
- Материал рулонный кровельный на битумно-полимерном вяжущем Элакром К-ПХ-БЭ К/ПП-5
Доп. работы за отдельную дополнительную плату
- Снос старых строений
- Выравнивание участка
- Устройство дорог и подъездных путей
Дополнительная информация
В стоимость входит:
Фундамент:
- Буронабивные сваи сечением 300х300 и заглублением на 2 метра ( * тип фундамента и его стоимость может быть скорректирована после геологии)
- Песчаная подушка
- Разводка системы канализации под фундаментом
- Закладные гильзы водопровода и электричества под фундаментом
- Гидроизоляция обмазочный мастикой
- Утеплитель фундамента из XPS (100 мм)
- Арматура Аlll S500
- Контур заземление вокруг фундамента с вводом в дом
- Сертифицированный бетон (марка С8/10, С 16/20, С20/25, С25/30)
Стены:
- Высота от чистового пола 2,95м для скатных и плоских кровель
- Наружные трехслойные ЖБ панели толщиной 330мм
- Внутренние несущие стены (по необходимости) – однослойные ЖБ панели толщиной 200мм
- Внутренние не несущие стены – однослойные ЖБ панели толщиной 120мм
- Внутренние кабель каналы под электропроводку с установкой подрозетников
КРОВЛЯ
- Модульная металлочерепица AQUASYSTEM профиль Гётеборг РЕ 0,5
- Стропильная система заводского изготовления из сухого строганого пиломатериала по технологии “Mitek”
- Вата целлюлозная Грин Палп Стандарт плотностью 30-35 кг/м3 толщиной 300мм
- Гидроизоляционная пленка TOPDACH 135
- Пароизоляционная пленка Fakra TERMOFOL 90 AL
- Оцинкованный крепеж
- Односторонняя клейкая лета для пароизоляционных пленок
- Лента клейкая, двусторонняя для гидроизоляционных пленок
- Лента кровельная уплотнительная под контробрешетку TOPDACH Pur
- Снегозадержатель трубчатый
- Проходки на кровле: вытяжка котельной (125 мм), вытяжка кухни (125 мм), фановый стояк (110 мм)
КРОВЛЯ
- ЖБ пустотная плита перекрытия толщиной 220мм
- Пароизоляционная пленка
- Утеплитель пенопласт ППТ 20 толщиной 150мм
- Утеплитель разуклонка переменной толщины 100мм и более
- Противопожарная отсечка из жесткой минеральной ватой толщиной 30мм средней плотности не менее 190 кг/м3
- Материал рулонный гидроизоляционный на битумно-полимерном вяжущем Элакром Г-ПХ-БЭ ПП/ПП-4
- Материал рулонный кровельный на битумно-полимерном вяжущем Элакром К-ПХ-БЭ К/ПП-5
Доп. работы за отдельную дополнительную плату
- Снос старых строений
- Выравнивание участка
- Устройство дорог и подъездных путей